Objektbeschreibung
Willkommen zu dieser außergewöhnlich gepflegten Immobilie in Groß Flottbek!
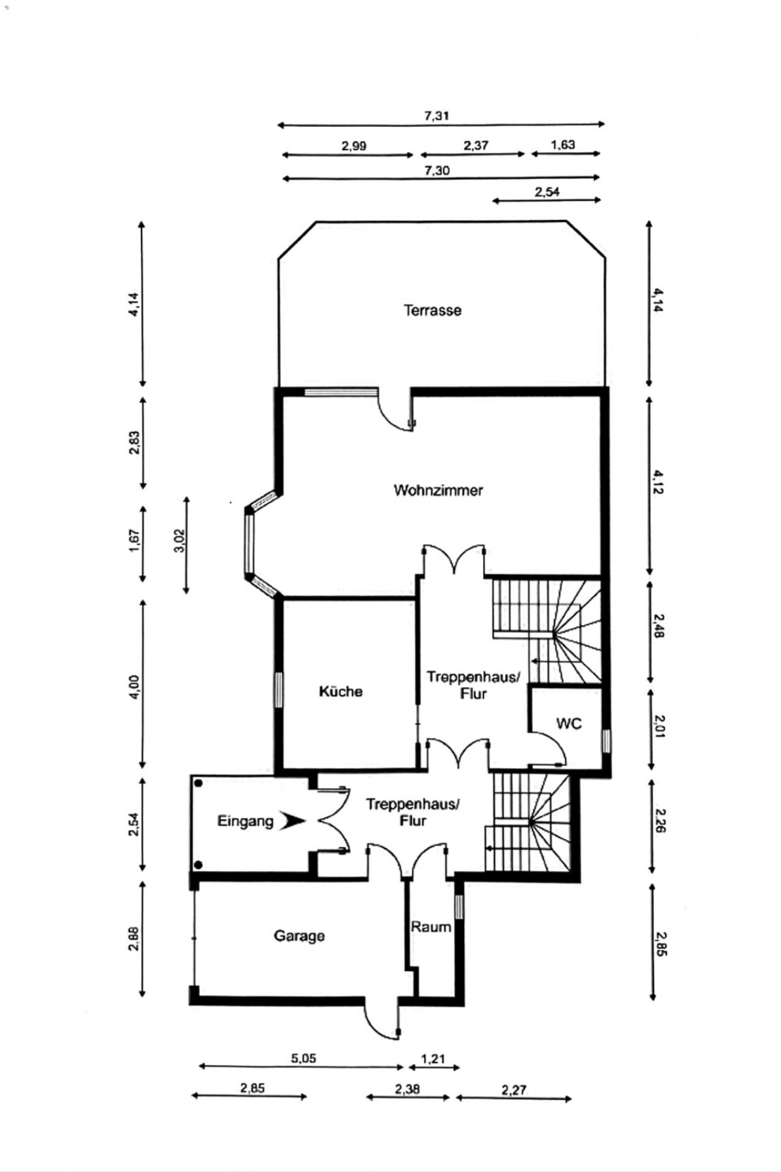
Bereits beim Betreten dieses Hauses wird deutlich, wie harmonisch Architektur, Materialität und Raumgefühl hier ineinandergreifen. Der Eingangsbereich empfängt ruhig und klar, mit warmen Oberflächen und ausgewogener Beleuchtung – ein durchdachter Auftakt, der direkt in das Herzstück des Hauses führt.
Im Erdgeschoss zeigt sich ein offenes, einladendes Raumkonzept. Die Küche ist elegant integriert, mit einer zentralen Küchenplatte, die den Übergang zum Ess- und Wohnbereich markiert. Große Fensterflächen sorgen für viel Tageslicht und schaffen den direkten Zugang zur überdachten Terrasse und in den grün umrahmten Garten – ein geschützter Ort, der Ruhe und Freiraum bietet.
Die Immobilie wurde fortlaufend modernisiert, zuletzt umfassend überarbeitet und technisch auf aktuellem Stand gehalten. Die Auswahl der Materialien, das Lichtkonzept und die feine Abstimmung von Farben und Oberflächen schaffen eine Atmosphäre, die zurückhaltend, hochwertig und stilsicher wirkt.
Im Obergeschoss setzen sich die klare Struktur und der gepflegte Eindruck fort. Besonders hervorzuheben sind zwei stilvoll ausgestattete Vollbäder – eines davon mit Blick in den Himmel – sowie ein großzügig integrierter Kleiderbereich und gut geschnittene Räume mit angenehmer Wohnwirkung.
Die Immobilie wurde im Jahr 2015 umfassend Modernisiert.
Im Überblick
Lage
Die Immobilie befindet sich in einer der begehrtesten Wohnlagen Hamburgs, im grünen und stilvoll gewachsenen Stadtteil Groß Flottbek. Das Umfeld ist geprägt von einer ruhigen, gehobenen Nachbarschaft, durchzogen von alten Bäumen, gepflegten Vorgärten und einer Bebauung, die architektonische Vielfalt mit hanseatischer Zurückhaltung verbindet.
Groß Flottbek bietet eine seltene Kombination aus städtischer Anbindung und naturnaher Lebensqualität. Die Elbe, der Jenischpark sowie weitläufige Grünflächen sind schnell erreichbar und laden zu Spaziergängen oder sportlicher Erholung ein. Zugleich ist die Anbindung an die Innenstadt und den Hamburger Westen durch den öffentlichen Nahverkehr und nahegelegene Verkehrsachsen komfortabel und schnell.
In direkter Umgebung finden sich gute Einkaufsmöglichkeiten, charmante Wochenmärkte, Cafés, Schulen und Kindergärten. Alles wirkt aufgeräumt, zurückhaltend und gepflegt – genau das, was diese Lage so besonders macht.
Ein Wohnumfeld mit Charakter und Beständigkeit – ideal für alle, die Wert auf Ruhe, Stil und gewachsene Qualität legen.
Ausstattung
• Galerie-Treppenhaus mit offener Raumwirkung
• Stilvoller Kamin im Wohnbereich
• Fußbodenheizung im gesamten Haus
• Echtholzdielen in Wohn- und Schlafbereichen
• Hochwertige, offen gestaltete Einbauküche
• Überdachte Terrasse mit Gartenblick
• Liebevoll angelegter, eingewachsener Garten
• Begehbarer Kleiderschrank im Obergeschoss
• Zwei moderne Vollbäder
• Gäste-WC im Erdgeschoss
• Voll unterkellert mit zusätzlicher Nutzfläche
• Zwei Außenstellplätze auf dem Grundstück
Sonstiges
• Kindergärten: Mehrere Einrichtungen im direkten Umfeld, z. B. Kita Osdorfer Weg - ca. 600 m
• Grundschule: Grundschule Osdorfer Weg 24 - ca. 1 km
• Gymnasium: Gymnasium Hochrad in - ca. 2 km
• Privatschule: Phorms Campus Hamburg - ca. 3 km
• International School of Hamburg ISH - ca. 3 km
• Einkaufsmöglichkeiten: Rewe, Edeka, Bäcker- ca. 1 km
• S-Bahn: Haltestelle Othmarschen (S1) - ca. 1,2 km
• Autobahn A7: Anschluss Bahrenfeld - ca. 450 m






















![[background image] funeral home exterior](https://cdn.prod.website-files.com/6980e2e49580bf5b72a4dd75/69be6a68499e1af9186972c3_Bildschirmfoto%202026-03-21%20um%2010.52.32.png)
![[headshot] image of customer (for a real estate tech)](https://cdn.prod.website-files.com/697f5be44a2e537e5998f0e8/697f60f7d2aa04c984e7484b_9f61993e-231b-4265-bfaf-90bfc41157c9.avif)
![[background image] funeral home exterior](https://cdn.prod.website-files.com/6980e2e49580bf5b72a4dd75/6993401bb3831df2b5481080_b9c259aa-079b-476f-bf2e-2ea0910bf556-1987872596.webp)
![[background image] funeral home exterior](https://cdn.prod.website-files.com/6980e2e49580bf5b72a4dd75/69933f7d882bb54f4e10fade_image%20(8).png)
![[background image] funeral home exterior](https://cdn.prod.website-files.com/6980e2e49580bf5b72a4dd75/699257a86c96bc4a0a8f789a_6992230cb00c6e62d92db992_image%20(9).png)
![[background image] funeral home exterior](https://cdn.prod.website-files.com/6980e2e49580bf5b72a4dd75/69925727152ed21e95b64bef_6992230cc904405696fc8626_image%20(7).png)

![[headshot] image of customer (for a construction company)](https://cdn.prod.website-files.com/697f5be44a2e537e5998f0e8/697f60f7d2aa04c984e7481e_3e11ecee-0375-4626-93d4-df21c0a72448.avif)

![[headshot] image of customer (for a real estate tech)](https://cdn.prod.website-files.com/697f5be44a2e537e5998f0e8/697f60f7d2aa04c984e74815_0923e987-2ba8-4e87-80d4-50933632c9f3.avif)

![[headshot] image of customer (for a robotics and automation)](https://cdn.prod.website-files.com/697f5be44a2e537e5998f0e8/697f60f7d2aa04c984e74806_b6a94bc9-dd10-4bcb-b234-17bf97001d74.avif)

![[headshot] image of customer (for an ai legal tech company)](https://cdn.prod.website-files.com/697f5be44a2e537e5998f0e8/697f60f7d2aa04c984e747e3_f9f9da29-0628-4c37-99f0-1ed4e70eac2b.avif)

![[headshot] image of customer (for a financial advisor)](https://cdn.prod.website-files.com/697f5be44a2e537e5998f0e8/697f60f7d2aa04c984e7487c_f036abe9-5933-45fa-b098-88d9ec33af64.avif)
![[background image] calm office setting (for a digital marketing & advertising agency)](https://cdn.prod.website-files.com/697f5be44a2e537e5998f0e8/697f60f8d2aa04c984e7489e_a995dcbd-b79a-4c30-b58a-182592fce9fb.avif)
![<subject>[headshot] image of customer (for a productivity tools business)</subject>](https://cdn.prod.website-files.com/697f5be44a2e537e5998f0e8/697f60f7d2aa04c984e74867_3fd51dad-6232-489c-b9d7-860eabe44f14.avif)

![[headshot] image of customer (for a trucking company)](https://cdn.prod.website-files.com/697f5be44a2e537e5998f0e8/697f60f7d2aa04c984e74837_6ce0a016-c20b-41c6-ae51-dec343362ec6.avif)
![[background image] image of urban community scene (for a humanitarian aid nonprofit)](https://cdn.prod.website-files.com/697f5be44a2e537e5998f0e8/697f60f8d2aa04c984e748a6_711e7b27-d944-4499-9a3b-25bc14b2e485.avif)
![image of founder [headshot]](https://cdn.prod.website-files.com/697f5be44a2e537e5998f0e8/697f60f7d2aa04c984e747c5_6f24bb51-c7eb-4e50-9258-8066c073c668.avif)

